
Gremmendorf ist ein Stadtteil mit ca. 12.000 Einwohnern im Süd-Osten von Münster. Mit der aus einem Wettbewerbsverfahren entschiedenen Umnutzung der dort befindlichen ca. 50 ha großen, ehemaligen englischen York-Kaserne zum neuen York-Quartier, wird hier der Bevölkerungsanteil mit prognostizierten 5.000 neuen Bewohnern um ca. 40 % deutlich erhöht.
Insgesamt wird das Areal in acht Teilquartiere A – H gegliedert. Das Teilquartier A mit dem Schwerpunkt Einzelhandel, Dienstleistung und Wohnen, wurde in 2 Baufelder aufgeteilt.
Für das Baufeld A2 des York-Quartiers beabsichtigten wir ein vielseitig nutzbares Stadtteilzentrum mit hohen Aufenthaltsqualitäten mit den Schwerpunkten Dienstleistung und Einzelhandel, Büros, Wohnen zu schaffen.
Ziel war die Entwicklung eines innovativen, tragfähigen Nutzungskonzeptes, dass die räumliche Trennung durch die Kreisstraße aufhebt und den bestehenden Stadtteil Alt-Gremmendorf mit dem neuen York-Quartier vereint.
Das neue Zentrum soll attraktive, über den Stadtteil hinauswirkende, Aufenthaltsqualitäten schaffen, eine vielfältigere und hochwertigere Versorgung sicherstellen und gleichzeitig bestehende Defizite beseitigen.
Entscheidend dafür ist das Nutzungskonzept im Erd- und Untergeschoss. Die Nutzung der oberen Geschosse ist dann bedarfsorientiert variabel.
Durch eine Mischung aus kleinteiligen und großflächigen Einzelhandelseinrichtungen um einen zentralen Platz wird ein Angebot geschaffen, das eine Bereicherung für Bürger und Besucher darstellt.
Neben der Verbesserung der Versorgungsstruktur lädt der Platz zum Verweilen ein und bietet Raum für vielfältige Aktivitäten und trägt somit als „Place to be“ für Jung und Alt zu einer Verbesserung der Wohnqualität des neuen Quartiers bei.
Hauptbestandteil unseres Entwurfskonzeptes ist die Markthalle, die in Haus A die ursprünglich die für den Discounter vorgesehene Fläche ersetzt.
Wir möchten mit vielfältigen Angeboten eine breite Zahl von Besucher*innen und Nutzer*innen ansprechen und dazu einladen, auch auf dem Yorkshireplatz zu verweilen.
Als Angebot sind Marktstände wechselnder regionaler Anbieter geplant. Diese können von der Platzseite durch große 2-flügelige Türen in die Halle geschoben und wochenmarktähnlich aufgereiht werden.
Dazwischen können gastronomische Angebote platziert werden. Es ist aus vergleichbaren Märkten möglich, dass sich Nutzungen und deren Standorte verfestigen und zu permanenten Ständen ausgebaut werden. Zugänge können flexibel zu allen Seiten angeboten werden.
Durch eine Mall in der Markthalle und einen separaten Zugang von Westen ist der Drogeriemarkt erreichbar. Diesem zum Boulevard vorgelagert ist ein Bekleidungsgeschäft geplant.
Im Drogeriemarkt kann man einige Sortimentsbereiche nach außen verlagern, ggf. auch mit separaten Eingängen. Gleiches gilt für den Vollsortimenter. Angebote wie Café, Bäcker, Imbiss und Salate mit Mittagstisch, Blumen, Zeitschriften und Tabakwaren können von innen, aber separat zusätzlich auch von außen erschlossen werden.
Dazu kommen Nutzungen wie Telefon-Shop, Bekleidung, Schlüsseldienst, Schuhhandel/Schuster und Gastronomie, die sich als Mantelnutzungen um die drei Kernnutzungen legen können.
An der Nordwestecke liegt die Ein- und Ausfahrt der Tiefgarage und eine Lieferzone.
Das Haus B nimmt den Vollsortimenter auf. Neben den zuvor beschriebenen Nutzungen am Yorkshire-Platz wird zusätzlich ein Restaurant mit ca. 150 Sitzplätzen und Flächen für Außengastronomie angelagert. Zum Boulevard wird eine einfachere Gastronomie mit Mittagstisch (Salatbuffet, Antipasti, Sushi etc.) angeordnet.
Unabhängig vom Vollsortimenter soll an der Südseite, gegenüber vom Start-up-Center Gastronomie angesiedelt werden.
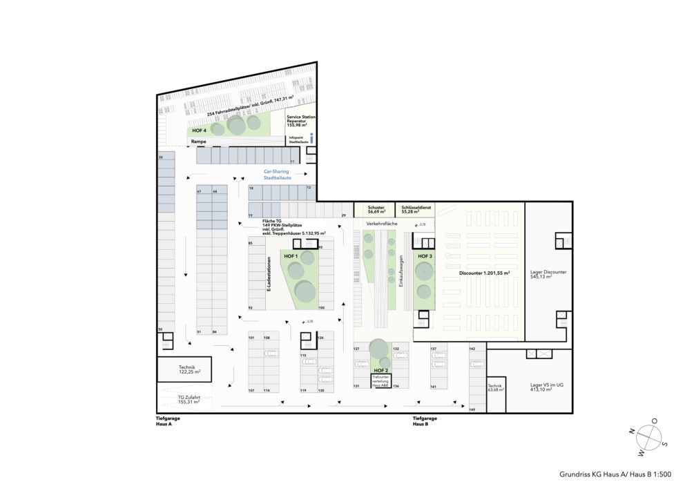
Die drei gewünschten Bausteine „Vollsortimenter, Discounter und Drogeriemarkt“ bieten zusammen im Erdgeschoss unserer Auffassung nach nicht die Gewähr für eine räumliche, visuelle und funktionale Beziehung zum Gebäudeumfeld. Insbesondere der Discounter ist introvertiert und benötigt, außer durch den Ein-/Ausgang keine Bezüge zum Umfeld.
Mit unseren Erfahrungen aus zwei Stadteilzentren – als Neubau und als Erweiterung einer Bestandsimmobilie – haben wir zugunsten der Aufenthaltsqualität und zu Lasten von Parkierungsflächen entschieden, den Discounter in das Untergeschoss zu legen, um Flächen für vielfältigere Nutzungen im EG zu erhalten. Diese grundsätzliche Entscheidung trägt erstmalig dazu bei, eine belebende Nutzung anbieten und somit den Yorkshire-Platz als lebendigen Ort für das Quartier und seine Bewohner*innen entwickeln zu können.



